Interior Design - Hospitality
Andenia
Location: Sacred Valley, Peru
Year: 2018
Area: 400 m2
Status: Finished

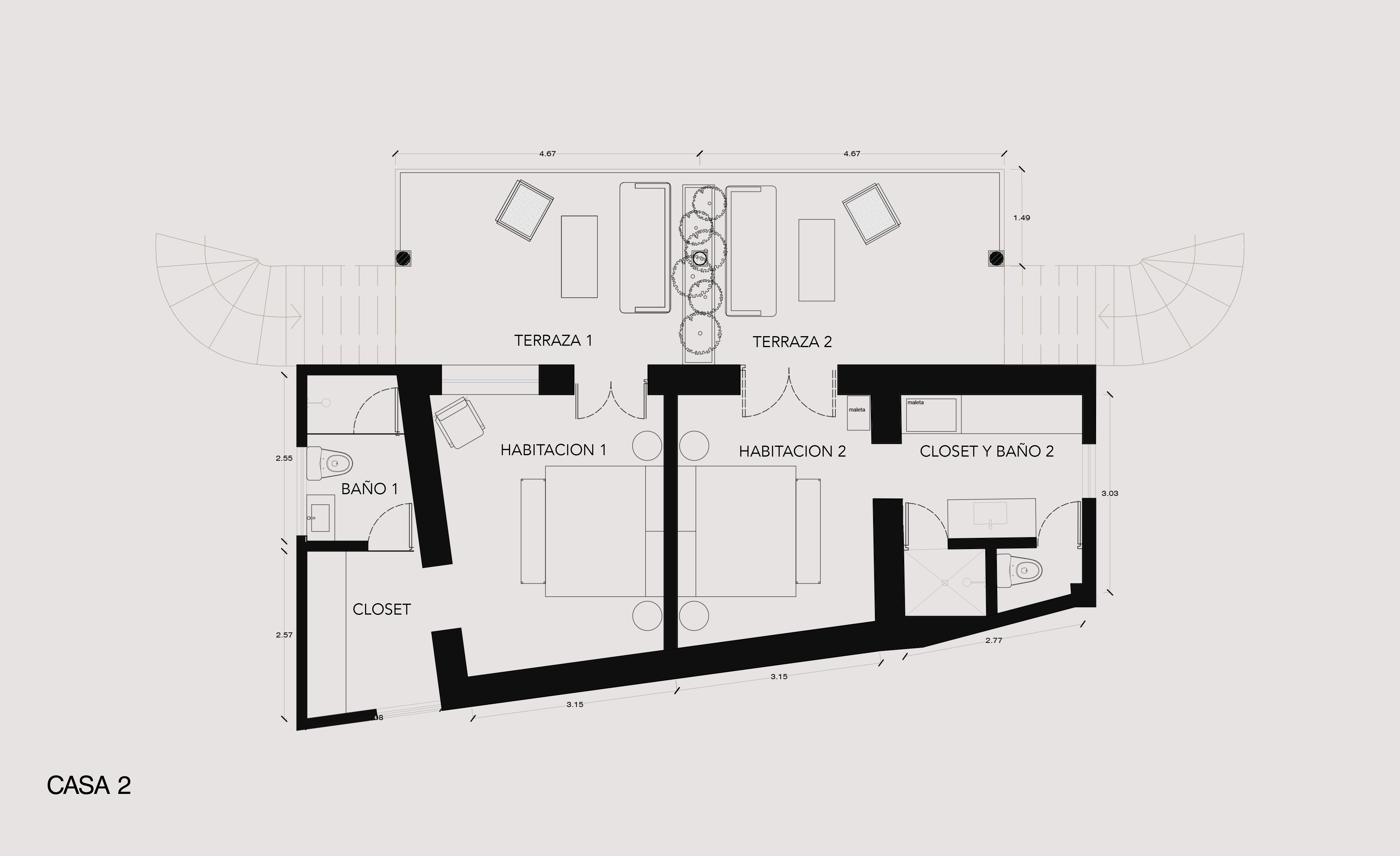
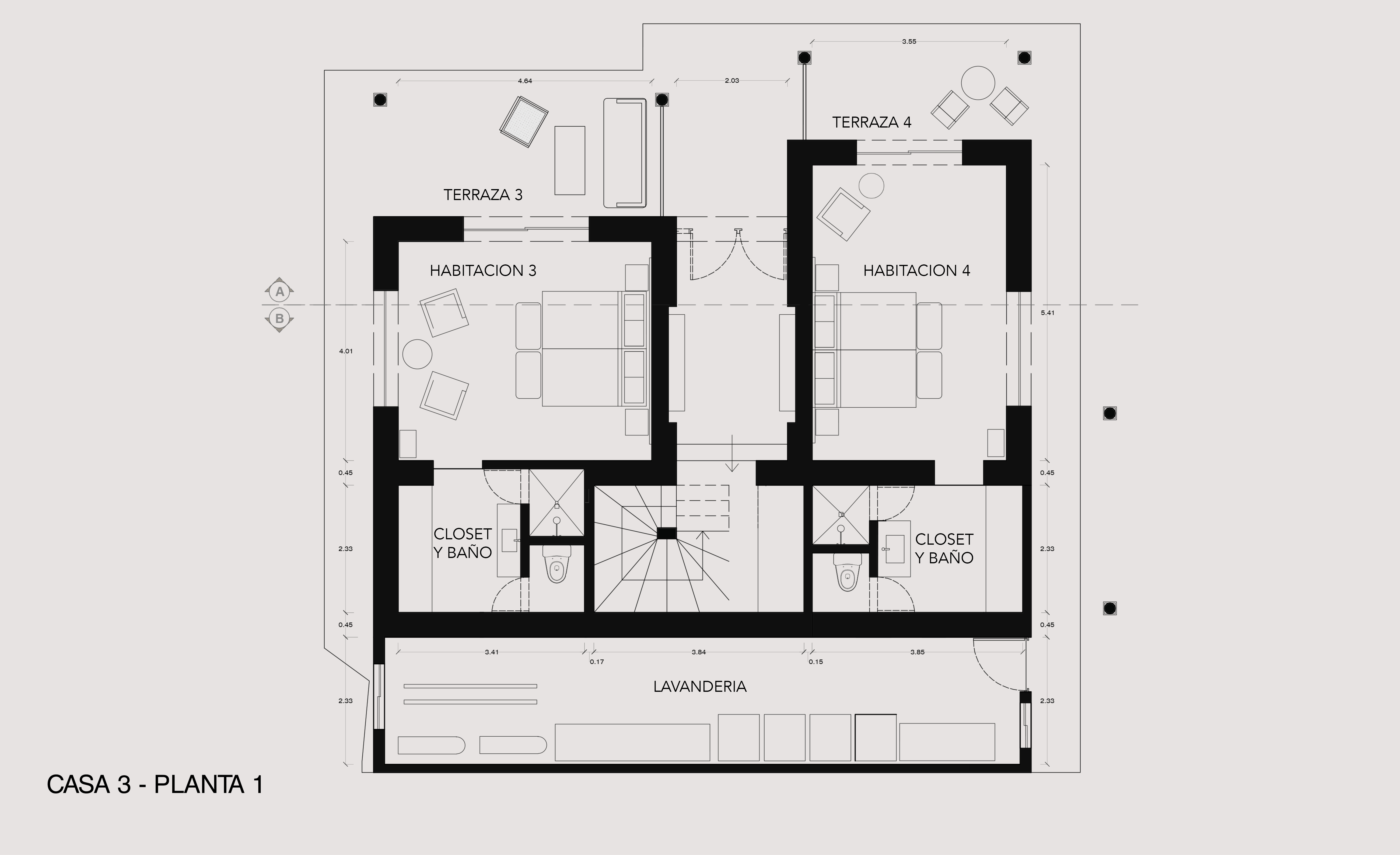
Andenia is a design boutique hotel located in Peru’s Sacred Valley. The project was developed in over two months. The architecture was already established, making this a complex renovation project to adapt the three houses and convert it to a hotel. The design of this project comprehended the architecture remodeling as well as furniture, finishings and equipment. Built in furniture was custom made by peruvian artisans of the area.
Branding & Interior Design : Blanco, Conceptos y Arquitectura
Photography: Ivan Salinero, Kimberly Moore





















CONCEPT: Connected with nature, Andean rooted, earth coloured, sunset spaces.




